Paulinenstraße !!Erstbezug mit Fußbodenheizung und Balkon im Bülowviertel !! WE 08
-
Vermarktung Vermietung
-
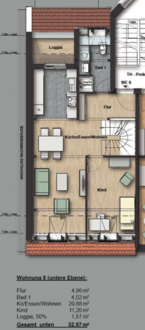
Wohnfläche 75,88 m²
-
Zimmer 3
-
Objekt Mehrfamilienhaus
-
Einheiten 8
-
Fertigstellung 10/2020
Beschreibung
- Objektbeschreibung
Das denkmalgeschützte Jugendstilhaus wurde liebevoll saniert und erstrahlt im neuen Glanz. Im Zuge der Baumaßnahmen entstanden 8 hochwertig ausgestattete Wohneinheiten mit nachfragegerechten Grundrissen. Die Balkone der Wohnungen (Südwest) richten sich optimal in den grünen Innenhof, welcher im Zuge der Sanierung neu gärtnerisch gestaltet wird.
- Ausstattung
* Balkon
* Fußbodenheizung
* Echtholzparkett
* Keller
* Bad mit Wanne
* Bad mit Dusche
- Lage
Die Paulinenstraße befindet sich direkt in dem aufstrebenden Stadtteilgebiet Sellerhausen im Bülowviertel. Eingebettet zwischen der Torgauer Straße, der Eisenbahnstraße und der Bahntrasse Leipzig-Dresden umschließt das Quartier ein abgeschlossenes, räumlich klar definiertes Gebiet. Hinsichtlich der Verkehrsanbindung punktet das Bülowviertel mit seiner Gunstlage. Über die beiden Hauptverkehrsachsen Eisenbahnstraße und Torgauer Straße ist ein schneller Zugang zu den benachbarten Ortsteilen und den Innenstadtbereichen möglich. Der öffentliche Nahverkehr erschließt das Viertel durch zwei anliegende Straßenbahnlinien und dem S-Bahn-Haltepunkt Sellerhausen. Auch der Autobahnring ist zügig erreichbar.
- Sonstiges
Aktuell befindet sich das Objekt noch in der Sanierung. Die beigefügten Bilder sind daher nur Beispielfotos / Referenzbilder. Gern zeigen wir Ihnen jedoch Vor-Ort das Objekt und die geplante Ausstattung.



















