****Vermietungsstart 05/2020**** Exlusives wohnen in der ehemaligen Engertschule – WE 12; 16
-
Vermarktung Vermietung
-
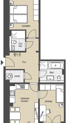
Wohnfläche 73,18 m²
-
Zimmer 3
-
Parkplätze 1
-
Objekt Mehrfamilienhaus
-
Einheiten 21
-
Fertigstellung 09/2020
Beschreibung
- Objektbeschreibung
Die bewegte Geschichte ihrer Nutzung findet nun zugleich ihren Fortgang wie auch ein (ehr)würdiges Ende – nach dem Umbau zum Wohnobjekt und einer hochwertigen Sanierung unter Beachtung der Denkmalschutzvorgaben wird endlich wieder Leben in das Haus einziehen. Fast alle Wohnungen verfügen über einen Balkon bzw. eine Loggia oder Terrasse. Hochwertige Holztüren und Eiche-Echtholzparkett mit Fußbodenheizung ergänzen die moderne, energieeffiziente Ausstattung der Räume. In beiden Treppenhäusern wird es einen Aufzug geben. Die Außenanlage wird komplett neugestaltet und mit Fahrradstellplätzen ausgestattet.
- Ausstattung
* Erstbezug nach Sanierung
* Wintergarten
* Echtholzparkett
* Bad mit Wanne und Dusche
* Aufzug
* Hauswirtschaftsraum
* offene (amerikanische) Küche
* Fußbodenheizung
- Lage
Die ehemalige Engertschule befindet sich direkt in dem aufstrebenden Stadtteilgebiet Lindenau – Plagwitz im Leipziger Westen. Sowohl der ruhig gelegene Karl-Heine-Kanal als auch die belebte Karl-Heine-Straße befinden sich in unmittelbarer Nähe. Die nah gelegene Karl-Heine-Straße mit ihren zahlreichen Restaurants, Bars und Pubs sowie diversen Kultstätten ist eine gern besuchte Straße für Jedermann. Für die kurze Strecke in die beliebte Leipziger Innenstadt, können Sie die 1-2 Minuten entfernte S-Bahn, Straßenbahn oder Bushaltestelle nutzen. In direkter Umgebung befinden sich Kitas, Schulen und Einkaufsmöglichkeiten. Ebenfalls gelangt man schnell zu dem Autobahnring Leipzig (A9, A14 und A38).
- Sonstiges
Aktuell befindet sich das Objekt noch in der Sanierung. Die beigefügten Bilder sind daher nur Beispielfotos / Referenzbilder. Gern zeigen wir Ihnen jedoch Vor-Ort das Objekt und die geplante Ausstattung.












